Mád - borászat és lakóház

Gergely Vince borászat és lakóház, Mád
Építész tervező: Salamin Miklós
Statikus tervező: Nagy Péter
Kivitelező: Épszer Zrt. Sárospatak
Tervezés /kivitelezés: 2003/2005
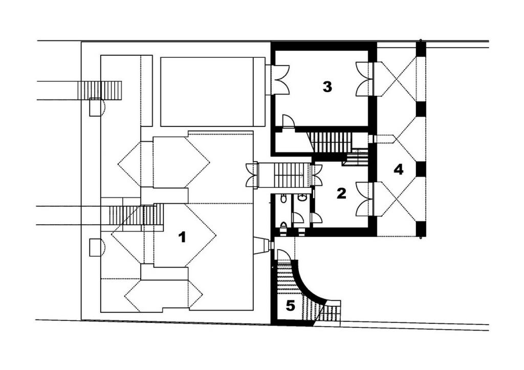
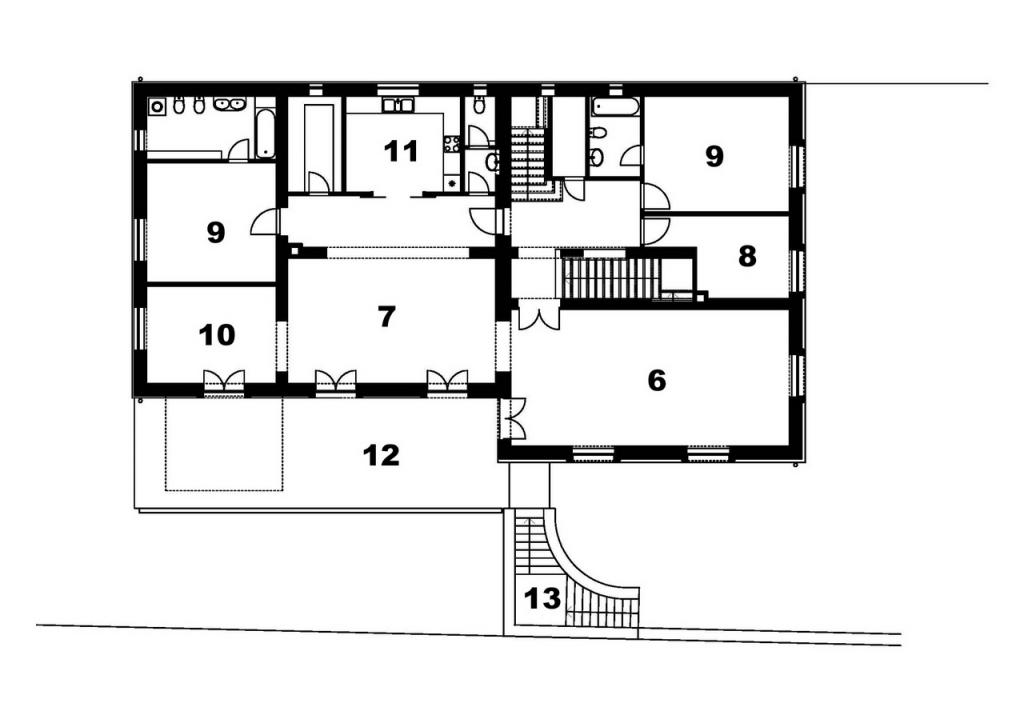
Mád központjában, a kisvárosias jelleget mutató főutcától feljebb állt az Orczy kúria, több más jelentősebb épülethez hasonlóan. A háború utáni években az épület gazdátlan volt, teteje bedőlt, építőanyagát később széthordták. Megmaradt szerencsére az alagsora és szép borospincéje. Az épület tulajdonosa Tokaj-hegyaljai borászatának központját és lakóhelyét kívánta elhelyezni a rekonstruált épületben. Az épület alagsorában a borászatot kiszolgáló gazdasági helyiségek, illetve a borospince és az épület közös előtere, a földszinten a lakóterek és a dolgozószoba, a tetőtérben pedig háló és vendégszobák kaptak helyet.
















